http://cad-draftingservices.blogspot.rs/2013/06/autocad-mechanical-drawings.html

CAD 3D to 2D Construction Drawings


 Steel Construction
Steel Construction Details
Built

 Steel Construction-Roof Plan
 Steel Construction-Roof Section & Details

Piping Bridges Drawings 
 Piping Bridges Drawings Details
Piping Bridges 3D model
AutoCAD 3D model rendering
 Built

 Steel Construction Stairs
 Platform

 Doors drawings
existing doors
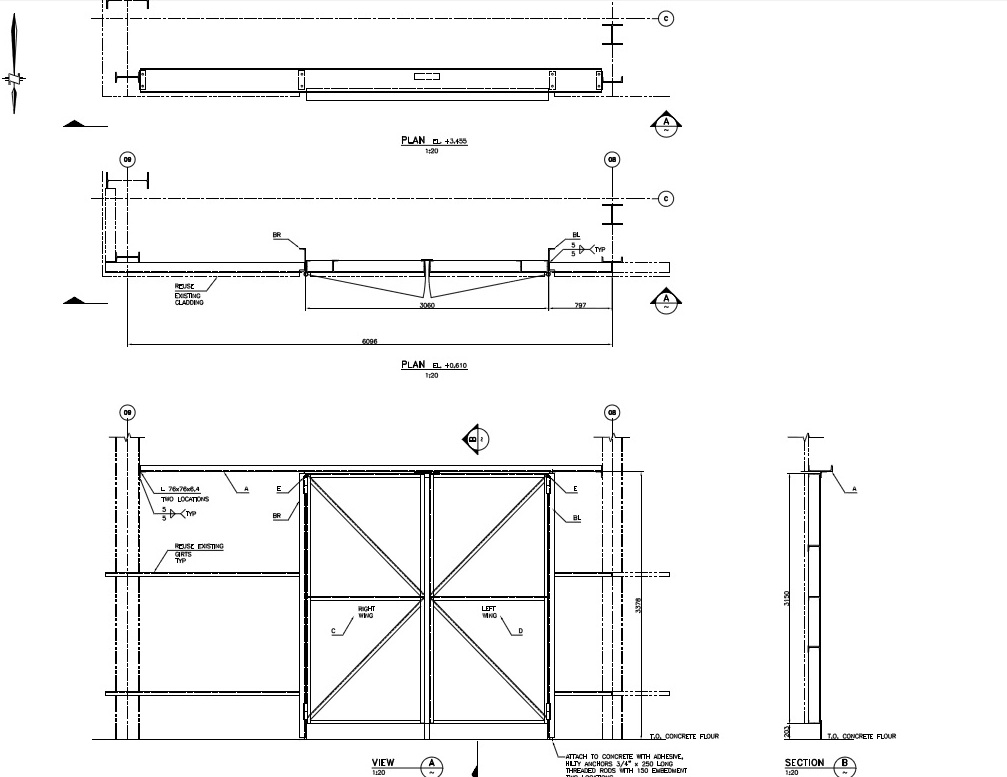
New doors drawings 

Industrial building
Built 

Foundation drawings

Demolation and excavation drawings
Built